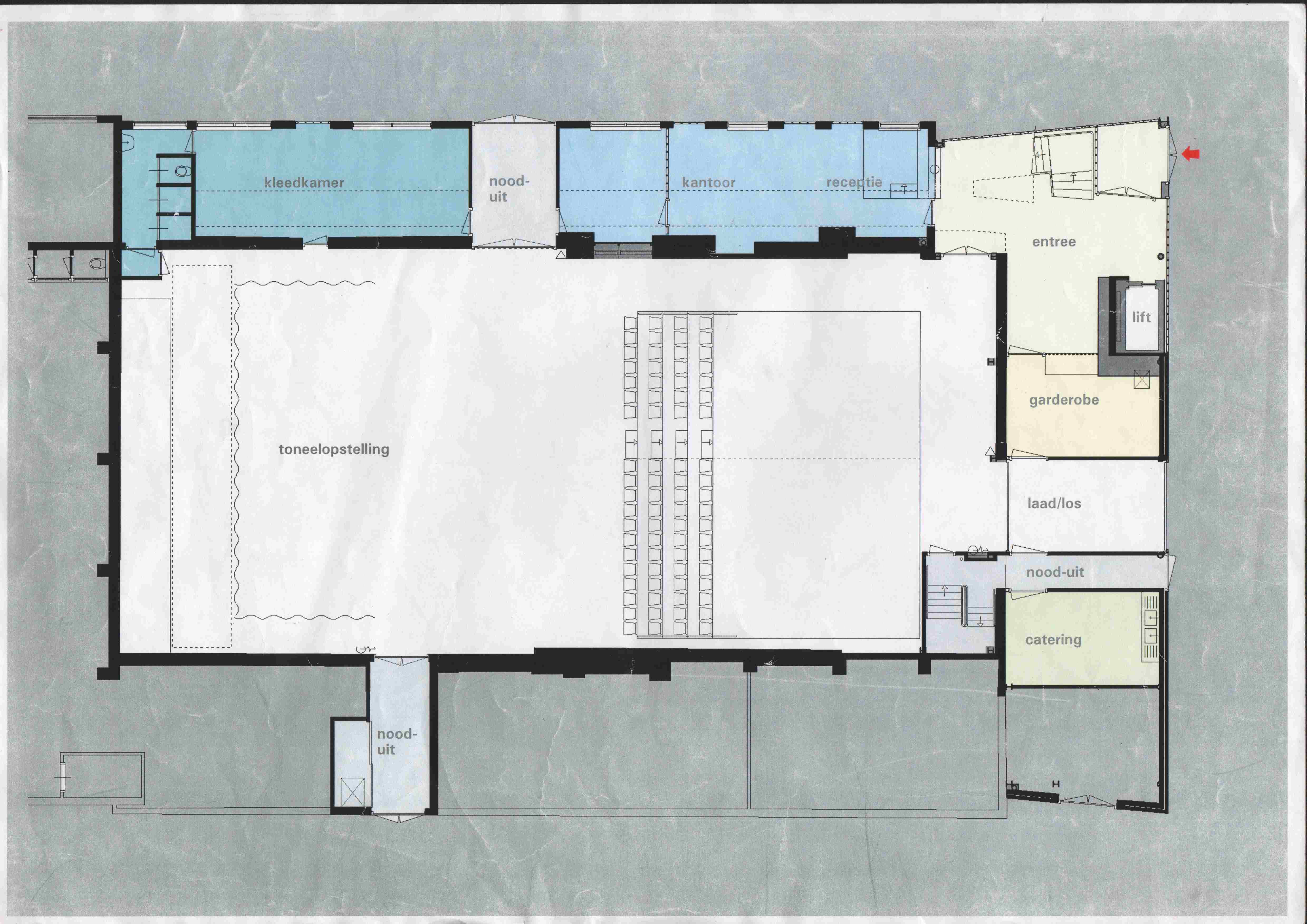
Bouwtekening kleedkamers
- Titel
- Bouwtekening kleedkamers
- Datum
- 7-6-2002
- Plaats
- Watertorenweg 200, 3063 HA Rotterdam
- Beschikbaar gesteld door
- Evan van de Most
- Subserie
- De Esch
- Behoort tot
- Hal 4
- Rechten
- Dit beeld is beschikbaar onder Creative Commons licensie CC BY NC ND 4.0
- creativecommons.org licenses by nc nd 4.0
- Identificatie
- 2002 06 Gebouw (10).jpg
